Description de l'offre
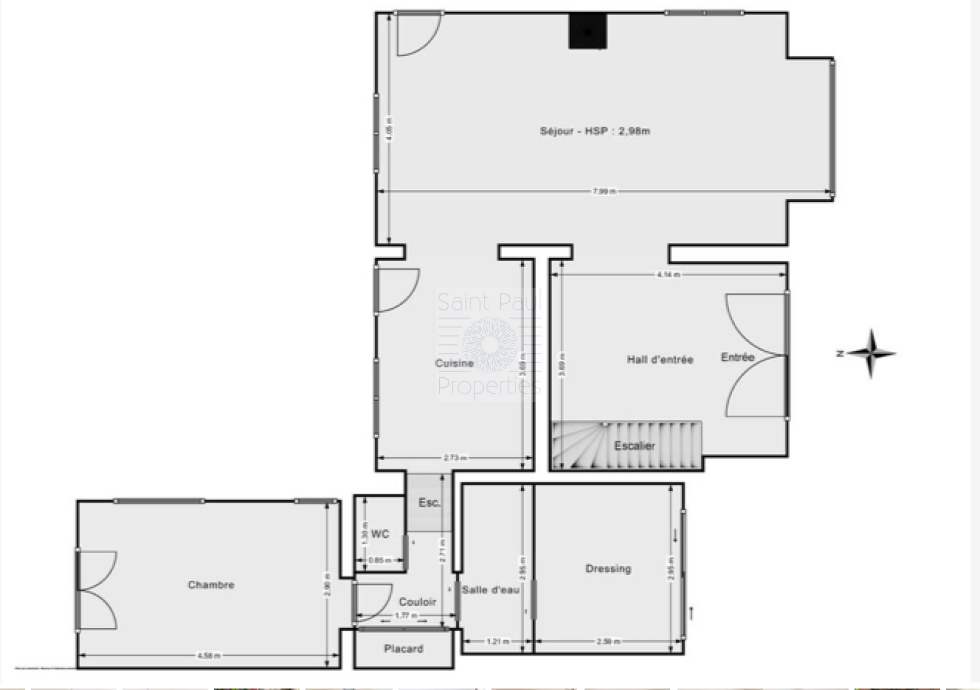
Un véritable coup de cœur familial! Située au Cros, à quelques pas des plages de Cagnes-sur-Mer, cette charmante maison des années 30 allie caractère, authenticité et confort moderne. Son style vintage, avec ses éléments d’époque soigneusement conservés, offre un cadre de vie unique et plein de charme. Dès l’entrée, vous serez séduit par cette maison atypique: le hall spacieux ouvre sur un très bel espace de vie avec un séjour de 30 m2 (hauteur sous plafond : 3 mètres) lumineux et convivial, qui communique avec une vaste cuisine semi-ouverte qui donne sur une agréable terrasse en bois, puis un jardin intime et arboré. L'espace parental est à ce même niveau, on y accède par quelques marches: wc séparé, chambre de 13 m2 avec accès direct au jardin, salle de douche et grand bureau lumineux. Au 1er étage, on accède à 2 vastes chambres (18 et 14M2) avec balcon et loggia qui se partagent une grande salle de bains. En résumé: une maison pleine de cachet, idéale pour une famille en quête d'authenticité et de bien-être, à deux pas de la mer, des écoles, des commerces et des restaurants, tout en bénéficiant du calme et de la sérénité d'un quartier résidentiel. Très rare sur le marché!
